#20 - 5650 Hampton Place
University VW – Vancouver, BC
About
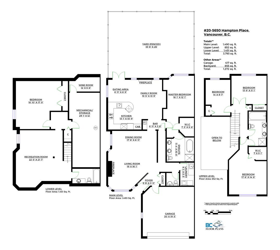
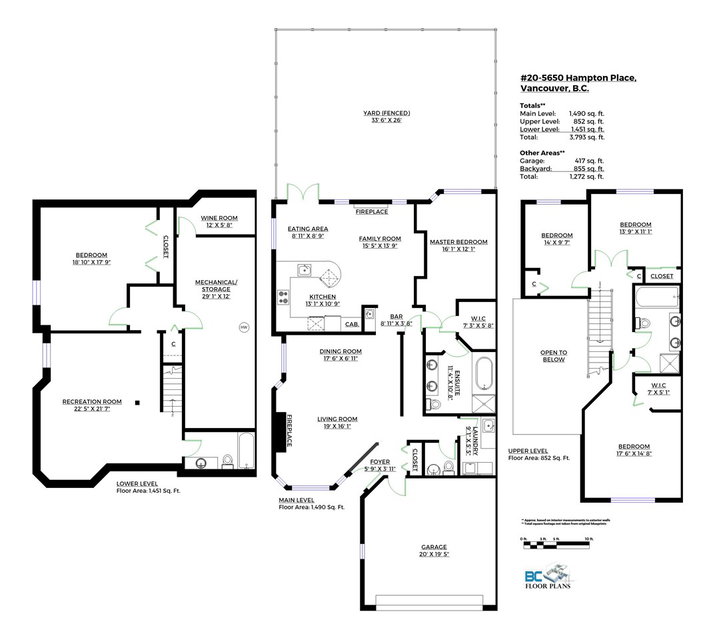
Welcome to The Sandringham, by Polygon, the original gated community of executive townhomes at UBC. This well designed 3 level home provides generous living spaces with the functionality of a house and worry free convenience to lock and leave. You will appreciate the option of a main floor master bedroom suite and 3 bedrooms upstairs, perfect for 2 home offices without sacrificing guest rooms or hobby space, as full bedroom and bath in the basement. Attached double garage, updated appliances and private 26’x33′ landscaped backyard completes the package. Walk to shopping & new UBC community centre, with Pacific Spirit Park at your door. These units rarely come on the market so call today for your private appointment.
Contact
